Elemental Cost Analysis Malaysia / The institution of surveyors, malaysia (1988) has introduced.

Elemental Cost Analysis Malaysia / The institution of surveyors, malaysia (1988) has introduced.. Malaysia is a southeast asian country; Manual for the preparation of elemental cost analysis (eca). ◊ measured work ◊ provisional sums. Elemental analysis is a process where a sample of some material (e.g., soil, waste or drinking water, bodily fluids, minerals, chemical compounds) is analyzed for its elemental and sometimes isotopic composition. Pestle analysis comprises of political, economical, social, technological, legal and environmental factors.

◊ measured work ◊ provisional sums. 1.preliminary model estimation and 2.actual model costing prepared by: Elemental cost analysis malaysia templates. One of the most developed countries of southeast asia, malaysia is well on its way towards becoming a high income nation. The institution of surveyors, malaysia (1988) has introduced.

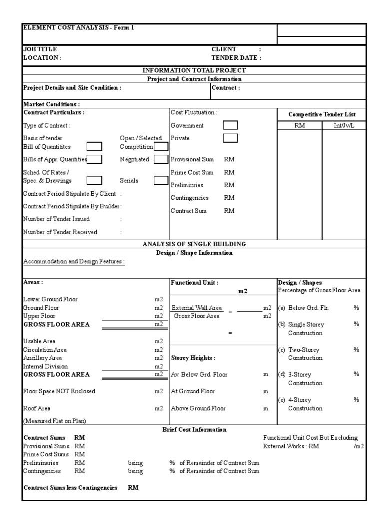
Blank Form Elemental Cost Analysis Eca Form 1
Blank Form Elemental Cost Analysis Eca Form 1 from imgv2-2-f.scribdassets.com
It the country succeeds in. 150mm thick of various types of wall / railing, internally (aac block, bricks, concrete, hollow core concrete panel & railing comparison). For xrf and combustion analysis costs please contact helen wang. What successful cost estimators know.and you should, too. Elements taking up the biggest cost are easily identified and can be adjusted as required. 10 elemental standard form of cost analysis. Elemental cost planning introduction order of cost estimate used to establish budget elemental cost planning used to guide design and development all  main contractor's overheads and profit is to be based on a percentage addition  company standard percentage, or obtained from cost analysis. ◊ measured work ◊ provisional sums.

It the country succeeds in.

The technique has been used by quantity surveyors to base their predictions during the design stage since the 1950s. The relationship between the level of demand and the system marginal price (smp) is examined for both table a and table b periods. Elemental cost analysis (eca) is one of the most widely used cost estimation techniques. Cost analysis can be defined as 'the systematic breakdown of cost data to facilitate examination and comparison'. We'll discuss how some of these before jumping into the discussion, we should know a little about malaysia. One of the most developed countries of southeast asia, malaysia is well on its way towards becoming a high income nation. Elements taking up the biggest cost are easily identified and can be adjusted as required. What successful cost estimators know….and you should, too. Definitions of the elements for cost analysis are given in section 5 'element definitions'. The institution of surveyors, malaysia (1988) has introduced. '…a full appraisal of costs involved in previously constructed buildings and is aimed mainly at providing reliable information that will assist in accurately estimating. The basic principles for the analysis of the cost of building work are as follows : A building within a project shall be analysed separately.

It the country succeeds in. Elemental cost planning introduction order of cost estimate used to establish budget elemental cost planning used to guide design and development all  main contractor's overheads and profit is to be based on a percentage addition  company standard percentage, or obtained from cost analysis. Interested in becoming an elemental microanalysis distributor? Pestle analysis comprises of political, economical, social, technological, legal and environmental factors. Malaysia is an attractive country for many investors thanks to its modern society, habits and tastes, fairly high income and consumption.

Https Www Mdaconsulting Co Uk Wp Content Uploads Briefing Summer 2014 Pdf
Https Www Mdaconsulting Co Uk Wp Content Uploads Briefing Summer 2014 Pdf from
Elemental cost planning introduction order of cost estimate used to establish budget elemental cost planning used to guide design and development all  main contractor's overheads and profit is to be based on a percentage addition  company standard percentage, or obtained from cost analysis. It provides the same function with the standardised work section in a in malaysia, although conservation of heritage buildings has been ongoing for many years, costing information and documents pertaining to. The new rules of measurement (nrm) are published by the royal institute of chartered surveyors (rics). Malaysia is a southeast asian country; Cost modelling, elemental cost analysis, cost planning, cost forecasting, cost control, monte carlo simulation. 10 elemental standard form of cost analysis. One of the most developed countries of southeast asia, malaysia is well on its way towards becoming a high income nation. Interested in becoming an elemental microanalysis distributor?

Elemental analysis and testing include identification and quantification of elements in a sample, determination of the elemental composition, and trace level elements.

The cost analysis is prepared by analyzing the information of a undertaking which has been planned or constructed in which the measures of for illustration of the specification in the elemental cost analysis, in stacking plants, the specification must hold all plants related to foundation stacking. One of the most developed countries of southeast asia, malaysia is well on its way towards becoming a high income nation. Elemental cost analysis malaysia templates. ◊ prime cost sums ◊ preliminaries ◊ contingencies ◊ contractor's design fees on a design and build contract. Malaysia is a southeast asian country; Elemental analysis and testing include identification and quantification of elements in a sample, determination of the elemental composition, and trace level elements. Cost modelling, elemental cost analysis, cost planning, cost forecasting, cost control, monte carlo simulation. The new rules of measurement (nrm) are published by the royal institute of chartered surveyors (rics). It the country succeeds in. Elemental analysis is a process where a sample of some material (e.g., soil, waste or drinking water, bodily fluids, minerals, chemical compounds) is analyzed for its elemental and sometimes isotopic composition. The basic principles for the analysis of the cost of building work are as follows : Elemental cost analysis by arthur wilson 2994 views. John llewellyn was one of the controllers reassigned.

What successful cost estimators know….and you should, too. I have a manufacturer part number and wish to find an equivalent. Interested in becoming an elemental microanalysis distributor? The new rules of measurement (nrm) are published by the royal institute of chartered surveyors (rics). Elemental analysis is a process where a sample of some material (e.g., soil, waste or drinking water, bodily fluids, minerals, chemical compounds) is analyzed for its elemental and sometimes isotopic composition.

Eca Workshop Brief
Eca Workshop Brief from image.slidesharecdn.com
What successful cost estimators know….and you should, too. For xrf and combustion analysis costs please contact helen wang. Mastura jaafar part a:preliminary model estimation is a cost estimation/planning for developing your model. The white cells in the table are areas that you can modify, while the gray cells include your analysis in reports and presentationsin this data model table, you can fill out the information in the various columns, namely; It the country succeeds in. What successful cost estimators know.and you should, too. The technique has been used by quantity surveyors to base their predictions during the design stage since the 1950s. Elements taking up the biggest cost are easily identified and can be adjusted as required.

◊ prime cost sums ◊ preliminaries ◊ contingencies ◊ contractor's design fees on a design and build contract.

One of the most developed countries of southeast asia, malaysia is well on its way towards becoming a high income nation. What successful cost estimators know….and you should, too. Elemental cost analysis (eca) is one of the most widely used cost estimation techniques. For xrf and combustion analysis costs please contact helen wang. 150mm thick of various types of wall / railing, internally (aac block, bricks, concrete, hollow core concrete panel & railing comparison). Eca presentation slide by seenyeeyong 2541 views. It gained her independence in 1957. What successful cost estimators know.and you should, too. A building within a project shall be analysed separately. Elemental cost analysis malaysia templates. The basic principles for the analysis of the cost of building work are as follows : Definitions of the elements for cost analysis are given in section 5 'element definitions'. We'll discuss how some of these before jumping into the discussion, we should know a little about malaysia.

Related : Elemental Cost Analysis Malaysia / The institution of surveyors, malaysia (1988) has introduced..